Товары и цены
-
Металлочерепица, ондулин, гибкая черепица, профнастил
-
- Металлочерепица
- Гибкая битумная черепица, мягкая кровля
- Битумные волнистые листы, ондулин, шифер
- Фальцевая кровля
- Профлист кровельный, профнастил
- Прозрачная кровля, козырьки, навесы
- Наплавляемая рулонная кровля
- Фасонные изделия, металлические планки
- Вентиляция кровли
- Крепёж кровельный, уплотнители, краска кровельная
- Сэндвич-панели для быстровозводимых зданий
-
-
Виниловый и фиброцементный сайдинг, фасадные панели, камень, термопанели, балки
-
- Виниловый сайдинг
- Фиброцементный сайдинг, керамосайдинг, хризотилцементные листы, шифер, композитные панели
- Фасадные полипропиленовые панели, цокольный сайдинг, облицовочные панели из ПВХ
- Фасадные облицовочные панели
- Искусственный камень
- Фасадная битумная плитка
- Деревянный погонаж, балки, имитация дерева
- Подшивка свесов, софиты
- Натуральный камень
- СФТК
- Металлический сайдинг
- Профнастил стеновой, профлист
- Фасонные элементы, отливы, архдекор, балки, метизы
-
-
Кирпич, мощение, плитка, керамогранит, термопанели, крепёж
-
- Керамический лицевой кирпич
- Клинкерный облицовочный кирпич
- Кирпич ручной формовки
- Плитка под кирпич и камень
- Тротуарный клинкерный кирпич
- Брусчатка, тротуарная плитка
- Рядовой строительный кирпич, стеновые блоки
- Шамотный, печной и фигурный кирпич
- Керамические подоконники, колпаки для ограждений, профильный кирпич
- Керамогранит
- ТЕРМОпанели
- Кладочные растворы, клеи, затирки
- Крепёж, метизы, аксессуары для кирпичной кладки, арматуры, анкеры, дюбели
-
- Натуральная черепица, медь, сланец, композитная кровля
- Газобетон, керамзитобетон, стеновые блоки, сваи, перемычки, балки
- Утеплители, теплоизоляция, звукоизоляция, ОСБ, Метизы
- Гидроизоляция, геотекстиль
- Мансардные окна, чердачные лестницы, снегозадержание
- Вентиляция дома, дымоходы
- Водосток, дренаж, грязезащита
- Террасы, тротуарная плитка, деревянный фасад, ступени, полы, деревянный погонаж
- Малые архитектурные формы
- Ворота, окна, двери, роллеты
-
Локальная канализация, очистка стоков, ёмкости
-
- Аэрационные станции
- Септики, системы с отстойниками
- Погреб для загородного дома
- Биофильтры, системы с биофильтрами
- Кессоны и Жироотделители
- Ёмкости для воды и пищевых продуктов
- Накопительные емкости
- Фильтрационные колодцы, тоннели и блоки
- Топливные ёмкости
- Летние душевые баки и кабины
- Компостеры
- Колодцы для дренажа и канализации
- Трубы, фитинги и комплектующие
-
-
Заборы и ограждения, калитки
-
- Панельные сварные ограждения 3D
- Забор-жалюзи
- Столбы заборные винтовые, квадратные, круглые
- Модульные ограждения Гранд Лайн, забор из профлиста
- Ограждения из ДПК, заборная доска, штакетник
- Противоголелёдные смеси
- Штакетник
- Калитки, ворота
- Профнастил для забора, профлист
- Сетка заборная металлическая
- Кронштейны, крепления заборные, метизы
- Габионы
- Декоративные бетонные заборы, оголовники
-
- Штукатурки, краски, с/смеси, клеи, растворы, архдекор, СФТК, защита древесины, сетки, профили
- Строительство и монтаж
-
Распродажа остатков
-
- Теплоизоляция распродажа остатков
- Caparol-sale
- РАСПРОДАЖА немецкой клинкерной плитки под кирпич со склада в Мурино!
- Чердачные лестницы распродажа остатков
- Линейный дренаж Аквасток распродажа остатков
- Распродажа мансардных окон
- Распродажа остатков дренажных систем
- Распродажа остатков облицовочных панелей
- Распродажа CoronaStop антисептик
- Распродажа cedral
- Распродажа остатков водосточных систем
- Распродажа остатков гибкой черепицы
- Распродажа остатков винилового сайдинга
- Гидроизоляция Распродажа
- Распродажа металлочерепица и фасонные изделия
-
Околооконный профиль 3,05 м Grand Line белый
- Строительные товары
- Стеновые и фасадные материалы
- Виниловый сайдинг
- Grand Line Classic
- Околооконный профиль 3,05 м Grand Line белый
Околооконный профиль 3,05 м Grand Line белый





В наличии на складе МУРИНО:
0.00 шт.
ID товара
ТХ21755
Тип
Аксессуары Grand Line Classic Standart белые
Профиль
Упаковка
12 шт/уп
Категория
Размер, мм
Гарантия, лет
Материал
Характеристики
Гарантия на технические характеристики 40 лет,
Гарантия на внешний вид 5 лет
Гарантия на внешний вид 5 лет
Серия (коллекция)
Цвет
Торговая марка
Вес, кг
1,32
Артикул производителя
041912
Белый
Белый
Страна
Важно! Минимальный объем заказа: 1 шт.
Точную информацию о наличии товара узнавайте у наших менеджеров офисов продаж.
Описание
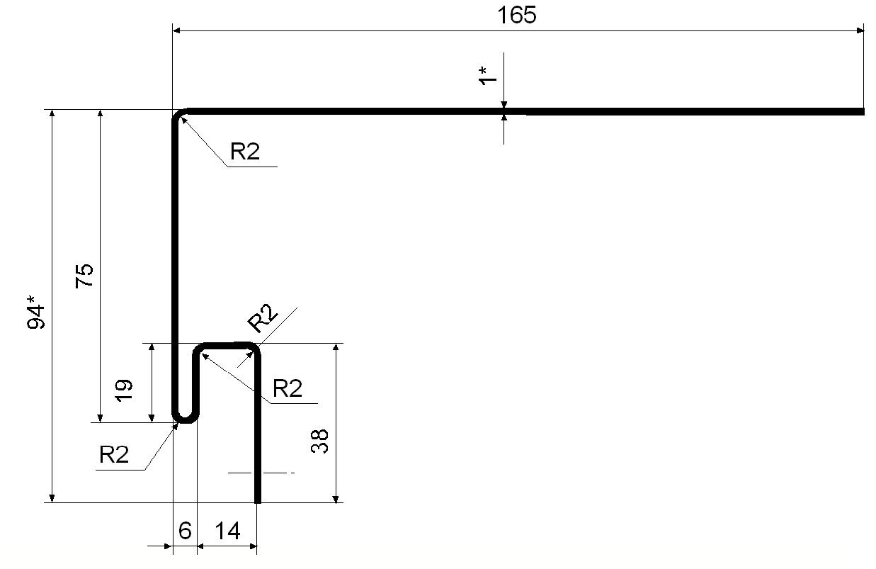
Околооконная планка применяется при обустройстве оконных и дверных проемов, в тех случаях, когда облицовочная панель находится не в одной плоскости с проемом окна или двери (есть откос).
Околооконный профиль 3,05 м Grand Line белый - высококачественный вариант, идеально подходящий для использования в частном малоэтажном строительстве. Наши материалы бренда Grand Line отличаются долговечностью, надежностью и соответствием всем современным стандартам качества. Преимущества: высокое качество от проверенного производителя, соответствие стандартам и нормам, долговечность и устойчивость к внешним воздействиям, легкость в использовании и монтаже. Околооконный профиль 3,05 м Grand Line белый можно приобрести в Санкт-Петербурге по цене 1596 рублей. Вы можете заказать товар на сайте или по номеру
+7 (812) 244-95-44
Похожие товары
код: ТХ21747
На складе
код: ТХ21748
Акция
Бесплатная доставка
-45%
На складе
код: ТХ48602
Акция
Бесплатная доставка
-45%
На складе
код: ТХ21749
Акция
Бесплатная доставка
-45%
На складе
код: ТХ21741
Акция
Бесплатная доставка
-45%
На складе
код: ТХ21738
Акция
Бесплатная доставка
-45%
На складе
код: ТХ21737
Акция
Бесплатная доставка
-45%
На складе
код: ТХ21740
Акция
Бесплатная доставка
-45%
На складе
код: ТХ21742
Акция
Бесплатная доставка
-45%
На складе
код: ТХ21750
Акция
Бесплатная доставка
-45%
На складе
код: ТХ21745
На складе
код: ТХ21746
Акция
Бесплатная доставка
-45%
На складе
код: ТХ21752
Акция
Бесплатная доставка
-45%
На складе
код: ТХ21736
Акция
Бесплатная доставка
-45%
На складе
код: ТХ21735
Акция
Бесплатная доставка
-45%
На складе
код: ТХ21739
Акция
Бесплатная доставка
-45%
На складе
код: ТХ21753
Акция
Бесплатная доставка
-45%
На складе
код: ТХ48601
Акция
Бесплатная доставка
-45%
На складе
код: ТХ48600
На складе
код: ТХ21744
Акция
Бесплатная доставка
-10%
На складе
код: ТХ26051
Акция
Бесплатная доставка
-10%
На складе
код: ТХ21734
Акция
Бесплатная доставка
-10%
На складе
С этим товаром смотрят
код: ТХ56056
Акция
Бесплатная доставка
-11%
На складе
код: ТХ44153
Акция
-12%
На складе
код: ТХ52148
Суперцена
Бесплатная доставка
-26%
На складе
код: ТХ26031
Бесплатная доставка
На складе
код: ТХ65613
Акция
-5%
На складе
код: ТХ55232
Акция
Бесплатная доставка
-10%
На складе
код: ТХ36427
Акция
Бесплатная доставка
-15%
На складе
Металлический штакетник П-образный фигурный PE двусторонний 0.45мм
Бренд: Grand LineСтрана: Россия
код: ТХ61039
Акция
Бесплатная доставка
-10%
На складе
Комплект водосточной системы ТН ОПТИМА 120/80 мм, для ската 6м, (желоба 1,5м)
Бренд: ТехноНикольСтрана: Россия
код: ТХ28482
На складе
код: ТХ46943
На складе
код: ТХ57904
Акция
-6%
На складе
код: ТХ9293
Акция
Бесплатная доставка
-11%
На складе
код: ТХ45691
На складе
код: ТХ35283
Акция
Бесплатная доставка
-11%
На складе
код: ТХ9288
Акция
Бесплатная доставка
-11%
На складе
код: ТХ9295
Акция
Бесплатная доставка
-11%
На складе
код: ТХ25187
Акция
Бесплатная доставка
-11%
На складе
код: ТХ25190
Акция
Бесплатная доставка
-11%
На складе
код: ТХ9286
Акция
Бесплатная доставка
-8%
На складе
код: ТХ9290
Акция
Бесплатная доставка
-11%
На складе
код: ТХ21759
Акция
-7%
На складе
код: ТХ47831
Акция
-5%
На складе
код: ТХ43421
Акция
-7%
На складе
код: ТХ47830
Акция
-5%
На складе
код: ТХ26026
Бесплатная доставка
На складе
код: ТХ26030
Бесплатная доставка
На складе
Предложения месяца
код: ТХ45401
Акция
-20%
На складе
код: ТХ62
Акция
Бесплатная доставка
Бесплатный расчет
-15%
На складе
код: ТХ38130
Акция
Бесплатная доставка
Бесплатный расчет
-15%
На складе
код: ТХ38129
Акция
Бесплатная доставка
Бесплатный расчет
-15%
На складе
код: ТХ36097
Акция
-20%
На складе
код: ТХ46393
Акция
Бесплатная доставка
Бесплатный расчет
-15%
На складе
код: ТХ36150
Акция
-20%
На складе
код: ТХ36096
Акция
-20%
На складе
код: ТХ24851
Акция
-20%
На складе
код: ТХ24852
Акция
-20%
На складе